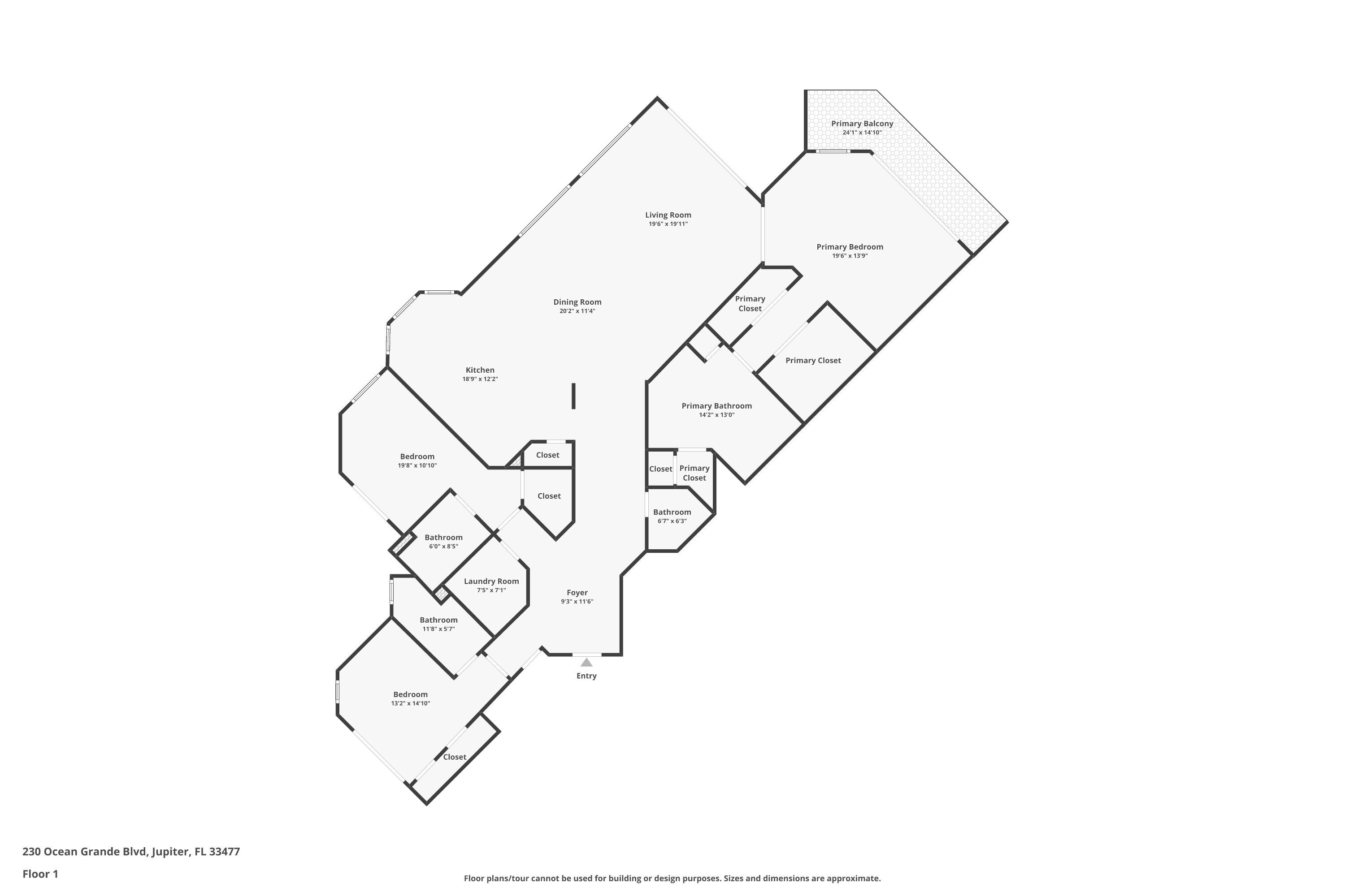
Property listings in Jupiter Ocean Grande 4 Condo subdivision of jupiter FL