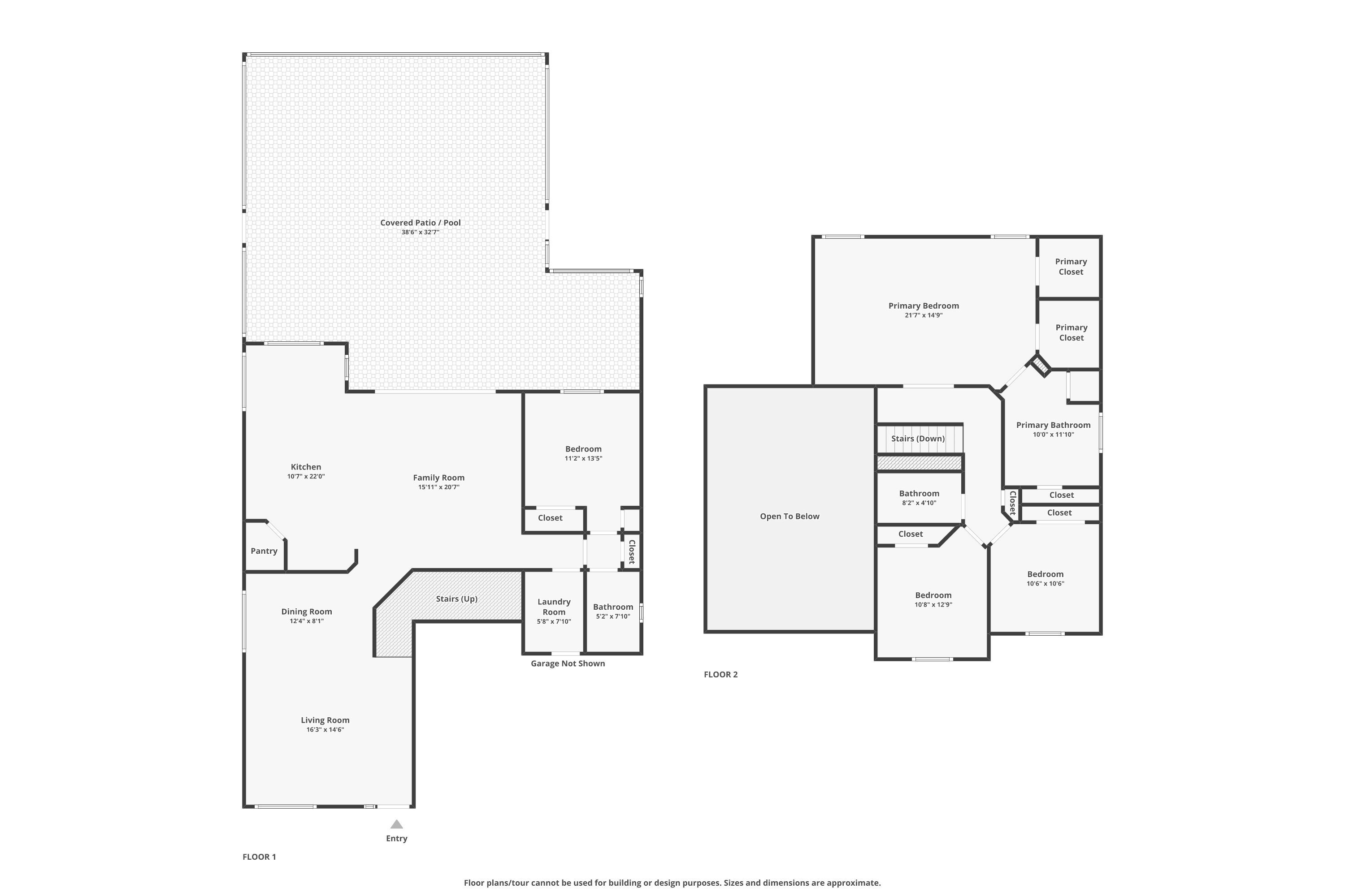
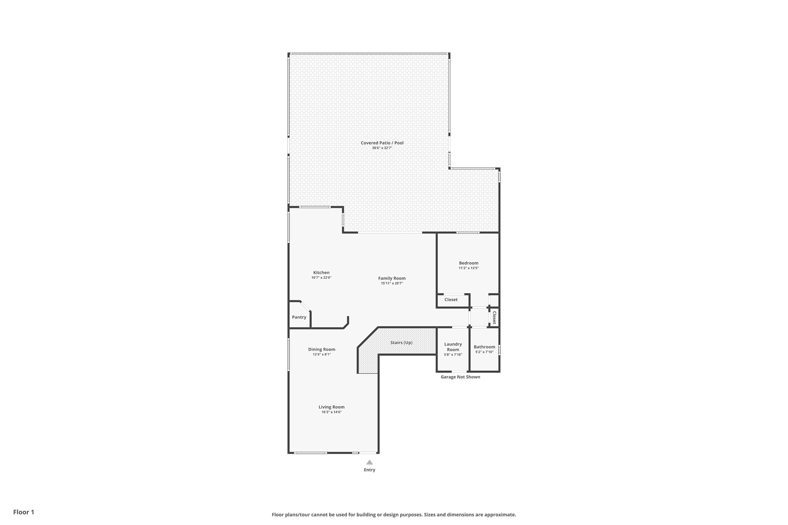
Prepare to be absolutely captivated by this gorgeous, upgraded lakefront pool home, perfectly situated within the highly sought-after Lake Charleston community and its excellent school zone! This residence combines spacious, sun-drenched living with worry-free modern upgrades. Step inside to soaring ceilings and an abundance of natural light, showcasing the desirable new flooring installed on the main level in 2022. Cable & internet services are included in the communities low HOA fees!
Property Details
Price:
$725,000
MLS #:
RX-11145234
Status:
Active
Beds:
4
Baths:
3
Type:
Single Family
Subtype:
Single Family Detached
Subdivision:
LAKE CHARLESTON
Listed Date:
Dec 4, 2025
Finished Sq Ft:
3,230
Year Built:
1994
See this Listing
Schools
Elementary School:
Manatee Elementary School
Middle School:
Christa Mcauliffe Middle School
High School:
Park Vista Community High School
Interior
Pets Allowed
Yes
Exterior
Development Name
Lake Charleston
Garage Spaces
2.00
Homeowners Assoc
Mandatory
Storm Protection: Accordion Shutter
Complete
Storm Protection: Impact Glass
Partial
Total Floors/Stories
2.00
Financial
HOA Fee
$165
Map
Community
- Address7287 Tillman Drive Lake Worth FL
- SubdivisionLAKE CHARLESTON
- CityLake Worth
- CountyPalm Beach
- Zip Code33467
Subdivisions in Lake Worth
- 0800 – MULTIFAMILY
- Abbington
- ag
- ALORA LUXURY CONDO ASSOCIATION
- ALORA LUXURY CONDOMINIUMS
- AMBASSADOR Bldg
- AMBASSADOR I CONDO
- ANDALUCIA
- ANDALUCIA PUD PLAT
- ANDALUCIA PUD PLAT 6
- Andover – Wycliffe
- ANDOVER AT WYCLIFFE CONDO
- ARBOR GLEN
- Ashwood Cove
- ATLANTIS PINES NORTH CONDO
- AUBURN PARK
- AZURA TOWNHOUSES
- BALMORAL COUNTRY CLUB LACUNA POD B
- BALMORAL COUNTRY CLUB LACUNA POD C
- BARCLAY AT POINCIANA PLACE CONDO
- BARRINGTON AT POINCIANA COND
- BARRINGTON AT POINCIANA CONDO
- Bay Meadow
- BELLAGGIO
- BELLAGGIO, TOWNE PARK
- Bellaggio;TOWNE PARK TR G
- BILTMORE TERRACE
- BOYNTON ESTATES 2
- CANALAKE REPLAT
- CAPISTARA
- CARLISLE AT POINCIANA CONDO
- CASA DE PLAYA OF LAKE WORTH CONDO
- CEDAR CREEK RANCH PUD
- CHARLESTON SHORES
- Charleston Shores / Lake Charleston
- CHESNUT HILL
- Clubhouse; Fitness Center, Manager on site; Picnic Area, Playground, Pool, Club house.
- Coco plum
- COLLEGE PARK
- COLLEGE PARK ADD 1
- COLLEGE PARK ADD 6 IN
- Colony Lake
- COLONY RESERVE AT LAKE WORTH
- Concept Homes of Lantana
- CONCEPT HOMES OF LANTANA PH 9
- CONCEPT HOMES OF LANTANA PL 1
- CONDOS AT COURTNEY PARK
- COUNTRY AS
- Country Wood 4
- Countryside
- COUNTRYSIDE TOWNHOMES 2
- COUNTRYWOOD
- Countrywood 04
- COUNTRYWOOD 2
- COUNTRYWOOD 3
- COUNTRYWOOD 4
- COUNTRYWOOD PL 3
- COURTYARDS OF LAKE WORTH
- COVERED BRIDGE
- COVERED BRIDGE – DOVER
- COVERED BRIDGE COND
- COVERED BRIDGE CONDO
- CRESTWOOD
- Cypress Lake Estates
- CYPRESS LAKES PRESERVE
- CYPRESS ROYALE
- CYPRESS ROYALE PUD
- Cypress Woods
- CYPRESS WOODS 1
- CYPRESS WOODS 2
- CYPRESSLAKE ESTATES
- D Este Court
- D Este Court in the Fountains Country Club
- DORCHESTER AT POINCIANA CONDO
- DOWNTOWNER SOUTH CONDO
- EL CASTELAY CONDO
- EMERALD LAKE
- EMERALD LAKE TOWNHOMES
- ENCLADE AT CROWN PARK
- ENCLAVE AT CROWN PARK CONDO
- ENGELWOOD MANOR
- ENGLEWOOD MANOR
- Esedra
- ESSEX AT POINCIANA CONDO
- FAIRFIELD\’S LACUNA
- FAIRFIELDS LACUNA 3
- FAIRFIELDS LACUNA 5
- FAIRWAY CLUB
- FAIRWAY CLUB at Lucerne Point.
- FAIRWAY CLUB CONDO
- FIELDS AT GULFSTREAM
- FIELDS AT GULFSTREAM POLO
- FIELDS AT GULFSTREAM POLO PUD
- FIELDS AT GULFSTREAM POLO PUD PLAT SIX
- FIELDS AT GULFSTREAM POLO PUD PLAT SIX REPLAT
- FLEUR DE LIS CONDO
- FLORAL PARK LANTANA
- FLORAL PARK LANTANA IN PB 23 PGS 129 & 1
- FLORIDA GARDENS
- FLORIDA GARDENS 1
- FLORIDA GARDENS 4
- Forest
- Forest Oaks Residential PUD
- Forest Oaks Residential, PUD
- FOUNTAINS
- Fountains Enclave
- FOUNTAINS OF PALM BEACH
- FOUNTAINS OF PALM BEACH COND 8 DECL FILED 6-28-81
- FOUNTAINS OF PALM BEACH COND NO 2
- FOUNTAINS OF PALM BEACH CONDO 2
- FOUNTAINS OF PALM BEACH CONDO 3
- FOUNTAINS OF PALM BEACH CONDO 4
- FOUNTAINS OF PALM BEACH CONDO 5
- FOUNTAINS OF PALM BEACH CONDO 6
- FOUNTAINS OF PALM BEACH CONDO 7
- FOUNTAINS OF PALM BEACH CONDO 7/ Tivoli/ The Fountains
- FOUNTAINS OF PALM BEACH CONDO 8
- Fountains of Palm Beach Condo 9
- Fountains of Palm Beach NO 5
- FOUNTAINS SOUTH COND NO 2 DECL FILED 9-27-84 IN
- Fountains South Condo #1
- FOUNTAINS SOUTH CONDO 2
- FOUNTAINS SOUTH CONDO 3A
- FOUNTAINS SOUTH CONDO 3B
- Fountains South Condo 3B DECL Filed 10-7-85 in
- FOUNTAINVIEW AT SPRING LKS CONDO
- FOUNTAINVIEW CONDO
- Gardens of Willow Bend
- GARDENS OF WILLOW BEND CONDOS
- GARY DALE UNREC ON
- GOLF CLUB EST
- GRAMERCY AT POINCIANA CONDO
- GRANDVIEW AT SPRING LAKES
- GREENACRES 1
- GREENBRIAR I OF SHERBROOKE
- GREENBRIER
- GREYHAWK LANDING
- Gulfstream Apartments
- GULFSTREAM PRESERVE
- HAMLET AT POINCIANA CONDO
- Heathwood Reserve
- HEATHWOOD RESERVE PUD
- HENDRIX RESERVE
- Heritage Farms
- HIDDEN LAKES AT NORTHTREE
- Hilltop Acres
- HOMELAND
- HOMES OF LEES CROSSING 3
- HOMES OF LEES CROSSING 8
- Hypoluxo
- Hypoluxo Haverhill PUD – Coco plum
- HYPOLUXO HAVERHILL PUD 1
- HYPOLUXO HAVERHILL PUD 2
- HYPOLUXO HAVERHILL PUD 2COCOPLUM
- HYPOLUXO HAVERHILL PUD PL 2
- HYPOLUXO VILLAGE 1
- HYPOLUXO VILLAGE 2
- ISLAND CLUB
- ISLAND ESTATES
- Isola Bella
- ISOLA BELLA ESTATES
- JOURNEYS END
- JOURNEYS END 1
- JOURNEYS END 2
- KANAWHA PARK
- KENWOOD
- KENWOOD IN PB 3 PGS 44 & 45
- KIRKWOOD SOUTH
- KIRKWOOD TOWNHOMES AS
- KOKOMO MOBILE HOME PARK
- KOKOMO TRAILER SUB IN
- LACUNA POD
- LAGO LUCERNE
- LAKE AVE APTS INC
- LAKE AVENUE LOFTS CONDO
- LAKE CHARLESTON
- LAKE CHARLESTON / WATER\’S EDGE
- LAKE CHARLESTON PAR D
- LAKE CHARLESTON PARS P & U
- LAKE CHARLESTON TR G 1
- LAKE CHARLESTON TR G 2
- LAKE CHARLESTON TR L 1
- LAKE CHARLESTON TR N
- LAKE CHARLESTON TR Q
- LAKE CHARLESTON TR X
- LAKE CHARLESTON TR Z
- LAKE CLARK GARDENS CONDOMINIUM No 21 LT 21 PL 4 LAKE CLARKE GARDENS
- LAKE CLARKE GARDENS
- LAKE CLARKE GARDENS COND NO 8 LT 8 LAKE CLARKE GARDENS
- LAKE CLARKE GARDENS COND NO 9 LT 9 LAKE CLARKE GARDENS
- LAKE CLARKE GARDENS CONDO 12
- LAKE CLARKE GARDENS CONDO 14
- LAKE CLARKE GARDENS CONDO 15
- LAKE CLARKE GARDENS CONDO 16
- LAKE CLARKE GARDENS CONDO 17
- LAKE CLARKE GARDENS CONDO 19
- LAKE CLARKE GARDENS CONDO 2
- LAKE CLARKE GARDENS CONDO 20A
- LAKE CLARKE GARDENS CONDO 21
- LAKE CLARKE GARDENS CONDO 22
- LAKE CLARKE GARDENS CONDO 23
- LAKE CLARKE GARDENS CONDO 24
- LAKE CLARKE GARDENS CONDO 25
- LAKE CLARKE GARDENS CONDO 26
- LAKE CLARKE GARDENS CONDO 3
- LAKE CLARKE GARDENS CONDO 4
- LAKE CLARKE GARDENS CONDO 5
- LAKE CLARKE GARDENS CONDO 6
- LAKE CLARKE GARDENS CONDO 7
- LAKE CLARKE GARDENS CONDO 9
- Lake Clarke Gardens Condominium
- LAKE CLARKE GARDENS CONDOMINIUM NO 21 LT 21 PL 4 LAKE CLARKE GARDENS PB29P1
- LAKE CLARKE GARDENS NO 16 COND DECL IN
- LAKE CLARKE TERRACE
- LAKE COVE OF LAKE WORTH
- Lake Osborne
- LAKE OSBORNE ESTATES
- LAKE OSBORNE ESTATES 3
- LAKE OSBORNE ESTATES 5
- LAKE OSBORNE PARK
- LAKE OSBORNE PARK ADD TO L W IN
- LAKE OSBORNE TOWERS CO OP APTS INC
- LAKE WORTH
- Lake Worth 1St Add in
- LAKE WORTH GOLFVIEW CONDO
- Lake Worth Heights
- LAKE WORTH HGTS IN
- LAKE WORTH TOWN
- LAKE WORTH TOWN OF
- LAKE WORTH TOWN OF ADD 1
- LAKES OF LANTANA PH 1-A
- LAKES OF LANTANA PH 2-B
- LAKES OF SHERBROOKE
- LAKES OF SHERBROOKE PH 3
- LAKES OF SHERBROOKE PH 6
- LAKES OF SHERBROOKE PH 8
- LAKES OF SHERBROOKE PH 9
- LAKESHORE AT THE FOUNTAINS
- LAKESHORE AT THE FOUNTAINS REPLAT
- LAKESIDE DRIVE APTS INC
- LAKESIDE MANOR CONDO
- LAKESIDE POINT APT 11 CONDO
- LAKESIDE POINT APT 2 CONDO
- LAKESIDE POINT APT 3 CONDO
- LAKESIDE POINT APT 4 CONDO
- LAKESIDE POINT APT 6 CONDO
- LAKESIDE POINT APT 8 CONDO
- Lakeside Point Condominiums
- LAKEVIEW ESTATES
- LAKEVIEW ESTATES PH 1
- LAKEVIEW ESTATES PH 3, 4 AND 5
- LAKEWOOD COVE
- LANAIR PARK
- LANTANA FARMS
- LANTANA FARMS PUD
- Lantana Homes 04
- LANTANA HOMES 3
- LANTANA HOMES 5
- LANTANA HOMES 6
- LANTANA HOMES 9
- LANTANA HOMES PL 1
- LANTANA PINES 1 SPORTSMENS CLUB
- LANTANA PINES 2
- LANTERN KEY
- LAWRENCE WOODS
- LEE ESTATES 1
- LEE ESTATES 2
- LEE\’S CROSSING 1
- LEES CROSSING 1
- LEES CROSSING 1 TWNHS
- LEGACY CHASE – SMITH FARM
- LEGEND LAKE ESTATES
- LEXINGTON ESTATES/SERENE RUN
- LUCERNE GREENS COND
- LUCERNE GREENS CONDO
- Lucerne Lakes
- LUCERNE LAKES Fairway Club
- LUCERNE LAKES GOLF COLONY
- LUCERNE LAKES GOLF COLONY CONDOS 1 THRU 12 AND 14 A
- LUCERNE LAKES HOMES
- LUCERNE LAKES HOMES VILL I AS
- LUCERNE LAKES HOMES VILLAGE 1 4TH ADD
- LUCERNE LAKES HOMES VILLAGE 1 5TH ADD
- LUCERNE LAKES HOMES VILLAGE I 3RD ADD AS
- LUCERNE LAKES HOMES VILLAGE I 6TH ADD
- LUCERNE LAKES HOMES VILLAGE II 3RD ADD
- LUCERNE LAKES HOMES VLLG-2
- LUCERNE LAKES SUNRISE OF PALM BEACH CONDO 1,2,3,4, 14 AND 17
- Lucerne Pointe
- LUCERNE POINTE @ LUCERNE LAKES
- LUCERNE POINTE CONDO C
- LUCERNE POINTE ONE,TWO,THREE FOUR,SEVEN,EIGHT,NINE
- LUCERNE POINTE ONE,TWO,THREE FOUR,SEVEN,EIGHT,NINE,TEN & ELEVEN
- Luxemburg
- MARALAGO CAY
- MARINER IV CONDO
- Marketplace at Wycliffe
- MEADOWGREEN TRAIL
- MEED RACQUET CLUB 2
- MEED RACQUET CLUB 3
- MEED RACQUET CLUB 4
- MIDLAND COMMONS
- MILITARY TRAIL PUD
- MODEL LAND CO
- MULBERRY
- Murray Hills Condo
- Murry Hills
- MURRY HILLS APT BLDG CONDO
- MURRY HILLS APT BLDG CONDS 1 TO 23 IN SECTION 29-44-43
- NORMANDY
- NORTH LAKE WORTH
- NORTH LAKE WORTH IN PB 5 PGS 48 & 49
- NORTHTREE
- NORTHTREE 2
- OLYMPUS VILLAGE
- OLYMPUS VILLAGE CONDO
- OSPREY
- OSPREY OAKS
- palm beach farm co 3
- Palm Beach Farms
- PALM BEACH FARMS CO 3
- PALM BEACH FARMS CO 7
- PALM BEACH FARMS CO PL 7
- PALM BEACH FARMS CO PL NO 3
- PALM BEACH NATIONAL GOLF & COUNTRY CLUB ESTATES
- PALM BEACH NATL GOLF AND COUNTRY CLUB ESTATES 2
- PALM BEACH NATL GOLF AND COUNTRY CLUB ESTATES 3A
- Palm Beach Plantation
- PALM BEACH RANCHETTES
- Palm Breezes Club
- PALM LAKE 1 CONDO
- palm lake condo
- PARISIAN WAY
- PARK TOWERS APARTMENTS CONDO
- PARKVIEW VILLAS CONDO
- PATIO COURT TOWNHOMES
- PINE KEY RESERVE CONDO
- POINCIANA
- POINCIANA – Jamison
- POINCIANA – MARGATE
- POINCIANA – OXFORD
- POINCIANA GARDENS CONDO
- POINCIANA LAKES CONDO
- POINCIANA PLACE
- POINCIANA PLACE COND 1,2,8 & 9
- Poinciana Place Condo
- POINCIANA PLACE CONDO 1,2,8 AND 9
- POINCIANA PLACE CONDO A,B AND C
- POINCIANA PLACE PH II-A
- Poinicana Place – Ambassador
- POINTE OVERLOOK CONDO
- POLO LEGACY
- POLO LEGACY MXPD
- REGENCY LAKE ESTATES
- RIDGE GROVE
- RIDGE GROVE ADD 1
- RIVERMILL
- SABAL GROVE PLAT TWO
- SAN CASTLE 1ST AND 2ND ADDS
- SAN CASTLE 3RD AND 4TH ADDS
- SAVANNAH ESTATES
- SEMINOLE MANOR 1
- SEMINOLE MANOR 2
- Seminole Ranches
- Silverwood Estates
- SMITH DAIRY WEST 3
- SMITH DAIRY WEST 4
- SMITH DAIRY WEST 7 PH 2
- SMITH DAIRY WEST 8
- SMITH DAIRY WEST PUD 1
- SMITH DAIRY WEST PUD 10
- SMITH DAIRY WEST PUD 6
- SMITH FARM
- SMITH FARM SMITHFARM
- SMITH FARM – LEGACY CHASE
- SMITH FARM- LEGACY CHASE
- Smith Farms, Legacy Chase
- SMITHBROOKE
- SOUTH ROAD PUD
- SPINNAKER BAY AT LAKE CHARLESTON
- SPRINGHILL 1
- SPRINGHILL PLAT 2
- SPRINGS
- ST ANDREWS AT BOYNTON BEACH CONDO
- ST ANDREWS AT BOYNTON BEACH CONDOMINIUM
- ST ANDREWS OF SHERBROOKE
- STERLING HOUSE CONDO
- STRAWBERRY LAKES 1
- STRAWBERRY LAKES 2
- STRAWBERRY LAKES PL
- SUBURBAN PINES
- Summer Chase
- Summer Chase ,CYPRESS WOODS 2
- SUMMER CHASE, CYPRESS WOODS 2
- SUNCREST RIDGE
- Sunrise of Palm Beach
- SUNRISE OF PALM BEACH COND NO 1,2,3,4, 14 & 17
- SUNRISE OF PALM BEACH CONDO 1,2,3,4, 14 AND 17
- TALAVERA
- The Country
- The Groves
- The Springs
- THORBURY HEIGHTS
- THOROUGHBRED LAKE ESTATES
- THOROUGHBRED LAKE ESTATES 2
- TOSCANA ISLES
- TOSCANA ISLES PUD PL
- TOWN COMMONS PUD REPLAT
- TOWN OF LAKE WORTH
- Trevi Court Fountains
- Tropical Country Estates
- Unincorporated
- Unincorporated Lake Worth
- UNINCORPORATED PALM BEACH COUNTY
- UNINCORPORATED PALM BEACH COUNTY. PALM BEACH FARMS.
- Unincorporated West Palm Beach
- URBAN ARTS LOFTS
- VALENCIA SHORES
- VALENCIA SHORES 1
- VALENCIA SHORES 3
- VALENCIA SHORES 4
- VALENCIA SHORES 5
- VALENCIA SHORES PL5
- VILLAGE OF TURNBERRY
- VILLAGES OF WINDSOR
- VILLAGES OF WINDSOR 1
- VILLAGES OF WINDSOR 2
- VILLAGES OF WINDSOR 4
- VILLAGES OF WINDSOR PL 4
- VILLAGES OF WINDSOR/VILLAGGIO
- VILLAGGIO
- VILLAMAR AT TOSCANA ISLES
- VILLAS AT LUCERNE LAKES
- VILLAS AT LUCERNE LAKES 2
- VILLAS AT LUCERNE LAKES I
- Villas at Willow Bend
- VILLAS OF WILLOW BEND
- VISTA LAGO
- WALDEN POND
- WALKER PRESERVE PARCEL
- WATERSIDE ESTATES
- WEST VILLAGE ARTIST LOFT
- WHISPERING PALMS 4
- WHITEHORSE ESTATES
- WILLOUGHBY FARMS
- Windsong
- WINDSONG ESTATES
- WINSTON TRAILS
- WINSTON TRAILS PAR 1
- WINSTON TRAILS PAR 11
- WINSTON TRAILS PAR 11 PH 2
- WINSTON TRAILS PAR 13
- WINSTON TRAILS PAR 15
- WINSTON TRAILS PAR 16
- WINSTON TRAILS PAR 17
- WINSTON TRAILS PAR 18
- WINSTON TRAILS PAR 2
- WINSTON TRAILS PAR 20
- WINSTON TRAILS PAR 4
- WINSTON TRAILS PAR 5
- WINSTON TRAILS PAR 5/WEDGEWOOD VILLAGE
- WINSTON TRAILS PAR 7
- WINSTON TRAILS PAR 8
- WINSTON TRAILS PAR 9A
- Woodland Creek 1
- WOODLAND CREEK III
- WOODS WALK
- WOODS WALK 2
- WOODS WALK 3
- WOODS WALK PL 3
- WYCLIFFE
- Wycliffe – Andover
- Wycliffe – Barclay
- Wycliffe – Cambridge
- Wycliffe – Exeter
- Wycliffe – Fairmont
- Wycliffe – Huntington
- WYCLIFFE – Kensington
- Wycliffe – Manchester Greens
- WYCLIFFE -Huntington
- Wycliffe Golf & Country Club
- WYCLIFFE Kensington
- WYCLIFFE PAR B
- WYCLIFFE PAR C
- WYCLIFFE PAR D
- WYCLIFFE TR C
- WYCLIFFE TR E
- WYCLIFFE TR F
- WYCLIFFE TR H
- WYCLIFFE TR I
- WYCLIFFE TR K
- WYCLIFFE TR M
- WYCLIFFE TR N
- Wycliffe- Andover
- Wycliffe-Andover
Market Summary
Current real estate data for Single Family in Lake Worth as of Dec 17, 2025
3,288
Single Family Listed
1,625
Avg DOM
201
Avg $ / SqFt
$583,367
Avg List Price
Property Summary
- Located in the LAKE CHARLESTON subdivision, 7287 Tillman Drive Lake Worth FL is a Single Family for sale in Lake Worth, FL, 33467. It is listed for $725,000 and features 4 beds, 3 baths, and has approximately 3,230 square feet of living space, and was originally constructed in 1994. The current price per square foot is $224. The average price per square foot for Single Family listings in Lake Worth is $201. The average listing price for Single Family in Lake Worth is $583,367. To schedule a showing of MLS#rx-11145234 at 7287 Tillman Drive in Lake Worth, FL, contact your Acquire Palm Beach LLC agent at 561-279-3333.
Similar Listings Nearby
Listing courtesy of KW Reserve Palm Beach, (561)–220–6006
© 2025 Beaches Multiple Listing Service BMLS. Information deemed reliable, but not guaranteed. This site was last updated Dec-17-2025 6:07:54 am.
© 2025 Beaches Multiple Listing Service BMLS. Information deemed reliable, but not guaranteed. This site was last updated Dec-17-2025 6:07:54 am.
7287 Tillman Drive
Lake Worth, FL



























































