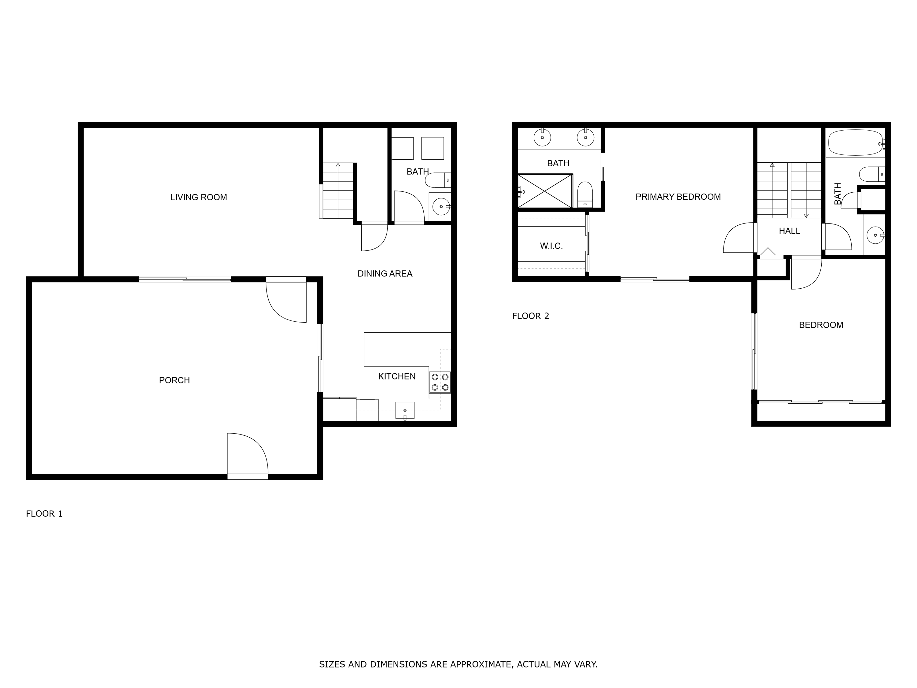
Come past the gate and find yourself in a private patio oasis perfect for entertaining and afternoon relaxation. New pet friendly high end turf area and spacious shed along with 3M film on all sliders, new 2024 accordion shutters and impact door for added convenience, full insurance mitigation credit, and peace of mind. Inside you will find a spacious living area with modern neutral tiles throughout, knockdown ceiling, newly redone wood staircase, and renovated modern kitchen with stainless steel appliances, one-level countertop island with huge workspace and bar style seating, white cabinets and open modern feel with additional dining area. Laundry room with new 2022 washer/dryer, added cabinets and updated powder room with additional storage round off the first floor.
Property Details
Price:
$325,000
MLS #:
RX-11136535
Status:
Active
Beds:
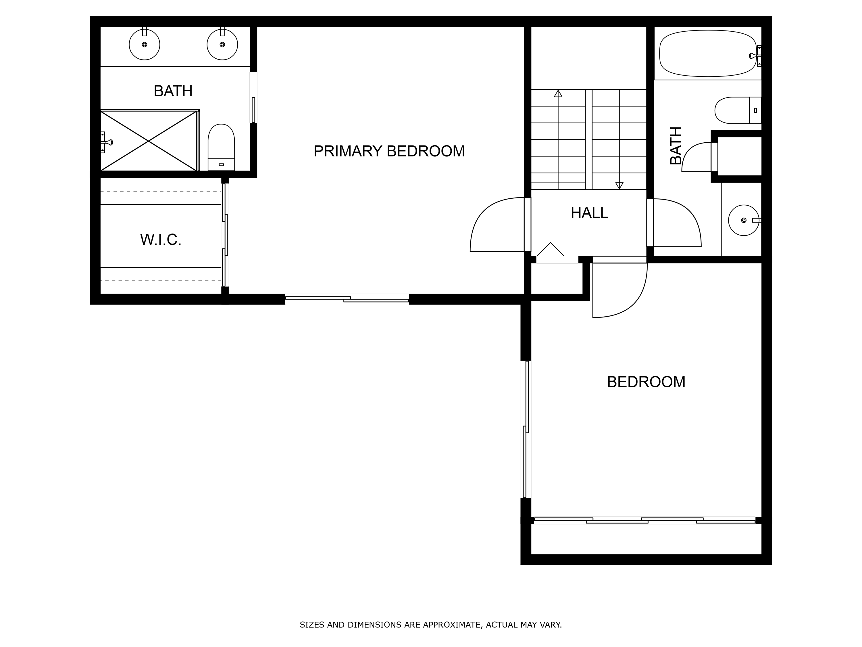
2
Baths:
2.1
Type:
Townhouse
Subdivision:
Village of Sandalwood Lakes
Listed Date:
Oct 30, 2025
Finished Sq Ft:
1,236
Year Built:
1983
See this Listing
Schools
Elementary School:
Egret Lake Elementary School
Middle School:
Bear Lakes Middle School
High School:
Palm Beach Lakes High School
Interior
Pets Allowed
Yes
Exterior
Garage Spaces
0.00
Homeowners Assoc
Mandatory
Storm Protection: Accordion Shutter
Complete
Total Floors/Stories
2.00
Financial
HOA Fee
$605
Map
Community
- Address302 3rd Way West Palm Beach FL
- SubdivisionVillage of Sandalwood Lakes
- CityWest Palm Beach
- CountyPalm Beach
- Zip Code33407
Subdivisions in West Palm Beach
- 101 Lofts Condo
- 101 LOFTS CONDOMINIUM
- 1515 FLAGLER CONDO
- 26-43-42, N 130 FT OF S 660 FT OF W 100 FT OF E 1000 FT OF NE 1/4 OF NE 1/4
- 610 Clematis
- 610 CLEMATIS CONDO
- 610 CLEMATIS CONDOMINIUM
- ABBEY
- ABBEY PARK 1
- ABBEY PARK GARDENS I COND
- ABBEY PARK GARDENS I CONDO
- ACACIA GARDENS
- ACACIA VILLA IN
- Acreage
- Acreage & Unrec
- Acreage Unincorporated
- ACREHOME PARK IN
- ALBA Palm Beach
- ALBA RESIDENCES
- Albert Lakes
- ALHAMBRA PARK
- ALMERIA
- ALMERIA ADD PB 9 P 79 & PB 9 & 17
- ALROSA PARK
- ANDOVER CONDOS
- ANDOVER CONDOS A-M
- ANDROS ISLE
- ANDROS ISLE PAR A
- Andros Isle Par B
- ANDROS ISLE PAR C
- ANDROS ISLE PAR D-1
- ANDROS ISLE PAR D-2
- ANDROS ISLE PAR E-1
- ANDROS ISLE PAR E-2 2
- Andros Isle Par F
- ANDROS ISLE REPL PAR B
- ANNA JOHNS ESTATES.
- ANNEX AT MAGNOLIA COURT CONDO
- ARAVALE
- Arbours II of the Palm Beaches condo
- ARBOURS OF THE PALM BEACHES COND
- ARBOURS OF THE PALM BEACHES CONDO
- ARKONA COURT
- ARLINGTON PLACE
- ARNOLD PARK
- AVONDALE
- BAHAMA HEIGHTS
- BAHAMA HEIGHTS 2
- BAHAMA HEIGHTS 5
- BALDWIN NICHOLS
- BANYAN CAY RESORT COMMUNITY PLAT
- BANYAN CAY RESORT COMMUNITY PLAT 1
- BANYAN ESTATES
- BANYAN LAKES
- Banyon Cay Resort Community
- Bay Hill Estates
- BAY HILL ESTATES / STONEWAL ESTATES
- Baywinds
- Baywinds / Lighthouse Pointe
- BAYWINDS POD H
- BAYWINDS RPD 1
- BAYWINDS RPD 11
- BAYWINDS RPD 12
- BAYWINDS RPD 2
- BAYWINDS RPD 3
- BAYWINDS RPD 8
- BAYWINDS RPD PL 1
- BAYWINDS RPD PL 4
- BAYWINDS/ BRIDGEPORT
- BAYWINDS/ WINDJAMMER COVE
- Baywinds/Windjammer Cove
- BEACH SHORES
- BEAR ISLAND
- BEAR LAKES ESTATES NORTH
- BEDFORD CONDO
- BEDFORD F CONDO
- BELAIR WPB
- Belhub Ind Park Pl 2
- Bella Lago Park Place
- BELLE TERRE
- BELLEVUE
- BELVEDERE
- BELVEDERE COURT 1
- BELVEDERE COURT 1 REPL
- BELVEDERE HEIGHTS
- BELVEDERE ISLES CONDO
- BELVEDERE ISLES CONDO NO 1
- BELVEDERE ISLES CONDO NO 2
- BELVEDERE ISLES CONDO NO 3
- BELVEDERE PARK
- BELVEDERE SOUTH 1
- BELVEDERE SOUTH PL 3 REPL PT OVERLOOK IN
- BELVEDERE WEST INDUSTRIAL PARK CONDO
- BELVEDERE WEST INDUSTRIAL PARK CONDOMINIUM
- BERGANTINO EST
- BERKSHIRE A THRU K CONDOS
- BETHESDA PARK
- BLUE HERON PARK PL 1 IN
- BONNYVIEW ADD 2
- BOULEVARD ESTATES
- BOULEVARD PARK
- BOULEVARD PARK IN
- BOUNDBROOK CONDO S
- BOUNDBROOK CONDOMINIUM # 9
- BOUNDBROOK CONDOMINIUMS.
- Brandon Estates
- Breakers West
- BREAKERS WEST 13
- BREAKERS WEST 16
- BREAKERS WEST 18
- BREAKERS WEST 5
- BREAKERS WEST 6
- BREAKERS WEST PL 13
- Breakers West/Flagler Manor
- Breakwater CondosBreakwater Of The Palm Beaches
- BREAKWATERS OF THE PALM BEACHES CONDO
- BRECKENRIDGE A CONDO
- BRIGER PARS B, E AND F
- BRIGER PARS G, H & J
- BRIGER PARS G, H AND J
- BRISTOL
- BRISTOL CONDO
- BROADMOOR
- BROADMOOR SEC 2 IN
- BROADMOOR SEC 3
- BROADMOOR SEC 4
- BROADMOOR SEC 4, SOSO
- BRYN MAWR
- BUNKER HILL ADD 2 TO WPB
- BUNKER HILL ADD 2 TO WPB IN
- BUNKER HILL ADD TO WPB
- BUNKER HILL ADD TO WPB IN
- BURNUP AND SIMS ESTATES
- BURNUP AND SIMS ESTATES 2
- BUSH & MOHNEYS
- CALOOSA
- CAM ESTATES
- CAMBRIDGE A THRU I CONDOS
- CAMBRIDGE CONDO
- Cambridge Condos A-I Cent
- Camden B
- CAMDEN B THRU P CONDOS
- CAMDEN CONDOS
- Camden K
- CANNONGATE 1
- CANNONGATE 2
- CANNONGATE PL4
- Cannongate Place
- CANTERBURY CONDOS
- CARAMBOLA COURT
- CARLBERG COURT
- CARLBERG COURT – MANGO PROMENADE
- CARLBERG COURT / Mango Promenade
- CARLBERG COURT ADD 1
- CASA DEL SOL
- Catalina
- Catalina Townhomes
- CATALINA TOWNHOMES PLAT
- CATALINA TOWNHOMES PLAT LT 33
- CENTRAL IND PARK NORTH
- Central Park
- CENTRAL PARK ADD 1
- Central Park South
- CENTRAL PARK SOUTH PALM BEACH
- CENTRAL PARK SOUTH PALM BEACH IN
- CENTURY VILLAGE
- CENTURY VILLAGE – ANDOVER CONDOS
- Century Village – BEDFORD CONDO
- CENTURY VILLAGE – BERKSHIRE A THRU K CONDOS
- CENTURY VILLAGE – CAMBRIDGE CONDO
- Century Village – Camden
- Century Village – Camden Condos
- CENTURY VILLAGE – CANTERBURY CONDOS
- CENTURY VILLAGE – CHATHAM CONDOS
- Century Village – COVENTRY CONDO
- CENTURY VILLAGE – DORCHESTER CONDO
- Century Village – EASTHAMPTON
- CENTURY VILLAGE – EASTHAMPTON CONDO
- Century Village – EASTHAMPTON G CONDO
- Century Village – Greenbrier
- CENTURY VILLAGE – GREENBRIER CONDO
- CENTURY VILLAGE – KINGSWOOD CONDOS
- Century Village – KINGSWOOD II CONDOS
- CENTURY VILLAGE – NORTHAMPTON
- CENTURY VILLAGE – NORTHAMPTON CONDOS
- Century Village – NORWICH CONDO
- CENTURY VILLAGE – OXFORD CONDO
- CENTURY VILLAGE – SALISBURY CONDOS
- Century Village – SHEFFIELD CONDOS A TO Q
- CENTURY VILLAGE – SOMERSET CONDOS
- CENTURY VILLAGE – SOUTHAMPTON CONDO
- CENTURY VILLAGE – SUSSEX CONDO
- Century Village – WALTHAM CONDO
- CENTURY VILLAGE – WELLINGTON CONDOS
- Century Village – WINDSOR CONDOS
- Century Village – WPB
- CENTURY VILLAGE -DORCHESTER CONDO
- CENTURY VILLAGE / ANDOVER CONDOS
- CENTURY VILLAGE / CAMDEN CONDOS
- CENTURY VILLAGE / CANTERBURY CONDOS
- CENTURY VILLAGE / COVENTRY CONDO
- CENTURY VILLAGE / EASTHAMPTON CONDO
- CENTURY VILLAGE / GREENBRIER CONDO
- CENTURY VILLAGE / KENT CONDOS
- CENTURY VILLAGE / NORWICH CONDO
- CENTURY VILLAGE / SALISBURY CONDOS
- CENTURY VILLAGE / SOUTHAMPTON CONDO
- CENTURY VILLAGE / SUSSEX CONDO
- CENTURY VILLAGE / WALTHAM CONDO
- CENTURY VILLAGE / WELLINGTON CONDOS
- CENTURY VILLAGE / WINDSOR CONDOS
- CENTURY VILLAGE /PLIMOUTH 5 CONDO
- CENTURY VILLAGE ANDOVER CONDOS
- CENTURY VILLAGE CANTERBURY CONDOS
- CENTURY VILLAGE COVENTRY CONDO
- CENTURY VILLAGE DORCHESTER CONDO
- Century Village GREENBRIER CONDO
- CENTURY VILLAGE KENT CONDOS
- Century Village NORTHAMPTON N
- CENTURY VILLAGE PLYMOUTH CONDOS A TO F
- CENTURY VILLAGE SHEFFIELD CONDOS A TO Q
- CENTURY VILLAGE SOMERSET CONDOS
- CENTURY VILLAGE SOUTHAMPTON CONDO
- CENTURY VILLAGE STRATFORD CONDO
- CENTURY VILLAGE WALTHAM CONDO
- CENTURY VILLAGE WELLINGTON CONDOS
- CENTURY VILLAGE WEST PALM BEACH
- CENTURY VILLAGE- 1ST FLOOR CONDO
- CENTURY VILLAGE- 202 ANDOVER H
- CENTURY VILLAGE-CAMDEN CONDOS
- CENTURY VILLAGE-COVENTRY CONDO
- CENTURY VILLAGE-NORTHAMPTON A THRU S CONDOS
- CENTURY VILLAGE/ PLYMOUTH CONDOS A TO F
- CENTURYY VILLAGE / STRATFORD CONDOMINIUM
- CHARLESTON COMMONS
- CHARLESTON COMMONS 2
- CHATHAM CONDOS
- CHELSEA OF WEDGEWOOD CONDO
- CHERRY LANE
- CHRISTIAN CONVENTION CENTER
- CITY PALMS CONDO
- CITYPLACE
- CITYPLACE GARDEN APTS CONDO
- CITYPLACE RESIDENTIAL 1
- CITYPLACE RESIDENTIAL PL 1
- CITYPLACE SOUTH TOWER
- CITYPLACE SOUTH TOWER CONDO
- CityPlace Townhouses
- CITYSIDE
- CITYSIDE CONDO
- CITYSIDE CONDOMINIUM
- CLASSICS AT BEAR LAKES
- CLEAR LAKE CLUB CONDO
- CLEAR LAKE CLUB CONDOMINIUM
- CLEAR LAKE PALMS CONDO
- CLOWS
- CLOWS ADD TO WPB
- CLOWS ADDITION
- Club at Ibis – Osprey Creek
- CLUB AT IBIS-LARKSPUR LANDING
- COLLINWOOD HEIGHTS 4
- COLONIAL ESTATES
- COLONIAL ESTS
- CONAILL
- CONDS 1 THRU 14 OF WHITEHALL CONDS OF THE LANDS OF THE PRESIDENT
- CONDS 1 THUR 20 OF WHITEHALL VILLAGES OF PALM BEACH LAKES DECLS IN OR4381P1167 & 5356P14
- CONSULATE CONDO
- CONTRACTORS BUSINESS PARK VISTA CENTER CONDO
- CONTRACTORS BUSINESS PARK VISTA CENTER CONDOMINIUM
- CONVENTION CENTER TOWN HOMES
- Counterpoint Estates
- COUNTRY CLUB PARK
- Country Club park 2 In
- COURTYARDS IN CITYPLACE
- COURTYARDS IN CITYPLACE CONDO
- COURTYARDS IN CITYPLACE CONDOMINIUM
- Cove at Briar Bay
- Cove At Briar Bay Condo
- COVENTRY A THRU L CONDOS
- Coventry Condo
- CRESTAVEN VILLAS COND N0 32
- CRESTHAVEN
- Cresthaven Cond Townhomes Sec 1 Unit 92
- CRESTHAVEN COND TOWNHOMES SEC 2
- CRESTHAVEN CONDO
- CRESTHAVEN CONDO TOWNHOMES SEC 1
- CRESTHAVEN CONDO TOWNHOMES SEC 2
- CRESTHAVEN CONDO TOWNHOMES SEC 3
- Cresthaven Emory Villas
- CRESTHAVEN OF PALM BEACH 1
- CRESTHAVEN TOWNHOMES COND SEC 4
- CRESTHAVEN TOWNHOMES SEC 4 CONDO
- CRESTHAVEN TOWNHOMES SEC 5 CONDO
- Cresthaven Villas
- CRESTHAVEN VILLAS – Crosley
- CRESTHAVEN VILLAS 1 CONDO
- Cresthaven Villas 11 Condo
- CRESTHAVEN VILLAS 14 CONDO
- CRESTHAVEN VILLAS 15 CONDO
- CRESTHAVEN VILLAS 16 CONDO
- CRESTHAVEN VILLAS 17 CONDO
- CRESTHAVEN VILLAS 2 CONDO
- CRESTHAVEN VILLAS 20 CONDO
- CRESTHAVEN VILLAS 28 CONDO
- CRESTHAVEN VILLAS 29 CONDO
- CRESTHAVEN VILLAS 3 CONDO
- CRESTHAVEN VILLAS 30 CONDO
- CRESTHAVEN VILLAS 6 CONDO
- CRESTHAVEN VILLAS 7 CONDO
- CRESTHAVEN VILLAS 8 CONDO
- Cresthaven Villas 9 Condo
- CRESTHAVEN VILLAS COND 19 VILLAS 19 OF PL 5 CRESTHAVEN OF PALM BEACH
- CRESTHAVEN VILLAS CONDO 19
- CRESTHAVEN VILLAS CONDO 20
- CRESTHAVEN VILLAS CONDO 21
- CRESTHAVEN VILLAS CONDO 22
- CRESTHAVEN VILLAS CONDO 24
- CRESTHAVEN VILLAS CONDO 25
- CRESTHAVEN VILLAS CONDO 26
- CRESTHAVEN VILLAS CONDO 27
- CRESTHAVEN VILLAS CONDO 31
- CRESTHAVEN VILLAS CONDO 32
- CRESTHAVEN VILLAS CONDO 33
- CRESTHAVEN VILLAS CONDO 34
- Cresthaven Villas No 1
- CRESTHAVEN VILLAS NO 14 COND DECL IN
- CRESTHAVEN VILLAS NO 17 COND DECL IN
- Cresthaven Villas No 2
- CRESTHAVEN VILLAS NO 2 COND DECL IN
- Cresthaven Villas No 7
- CRESTHAVEN VILLAS NO 9 CONDO
- Crosley
- CROSS CREEK COND DECL FILED 3-3-80
- CROSS CREEK CONDO
- Cypress Lakes
- CYPRESS LAKES 10
- CYPRESS LAKES 12
- CYPRESS LAKES 2
- CYPRESS LAKES 3-A
- CYPRESS LAKES 4
- CYPRESS LAKES 6-A
- CYPRESS LAKES 7-A
- CYPRESS LAKES 9
- CYPRESS LAKES PL 6-A
- CYPRESS TRAIL CONDO
- DAVIS PLACE
- DELLAWANA PLACE
- DIAMOND C RANCH POD B
- DIAMOND C RANCH POD C – Palm Beach Plantation
- Diamond C Ranch POD G
- DILLMAN HEIGHTS 1
- DILLMAN PARK
- DILLRUN ESTATES, Montclaire Estates
- DORCHESTER CONDO
- DOVER CONDO
- DOWNTOWN BUSINESS PARK CONDO
- Downtown West Palm Beach
- EASTHAMPTON A thru I CONDO
- EASTHAMPTON CONDO
- EASTHAMPTON CONDO F
- EASTPOINTE SUB 9
- EDEN PLACE
- EDEN PLACE CONDO
- EDGE CONDO
- Edge Condo no one
- EDGE CONDO ONE
- EDGEWATER
- EDGEWATER PARK
- EDMOR ESTATES
- El Cid
- EL CID COURT
- EL CID COURT IN
- El Cid LaFayette Park
- EL CID PARK ADD
- EL CID PARK ADD IN
- EL MONTE PARK
- ELCID
- ELLAMAR
- ELMWOOD ESTATES REPLAT OF PARCEL A
- ELWA PLACE
- ELWA PLACE EXTENSION
- Embassy Park
- EMBASSY PARK CONDO
- EMBASSY PLACE CONDO
- EMERALD ISLE AT LAGUNA LAKE CONDOMINIUM
- EMERALD ISLE AT LAGUNA LAKES
- EMERALD ISLE AT LAGUNA LAKES CONDO
- Emerald Isle At Laguna Lakes Condominium
- Emory East
- ENCLAVE AT MANGONIA PARK
- ENVOY CONDO
- ESPERANTE
- ESPERANTE CONDO
- ESPLANADE GRANDE CONDO
- ESPLANADE GRANDE CONDOMINIUM
- Essex Lane
- ESTATES OF SOUTH PALM BEACH
- ESTATES OF SOUTH PALM BEACH ADD 1
- ESTS OF SOUTH PALM BEACH REV
- ESTS OF SOUTH PALM BEACH REV, SoSo
- EXECUTIVE CENTER PLAZA CONDO
- FERGUSSON COURT
- FERNWOOD
- FLA MANGO GROVELETS ADDN NO 1 AMND
- FLAGLER FORTE RESIDENCES
- FLAGLER LANDING
- FLAGLER LANDING CONDO
- Flagler Lane
- Flagler Pointe
- FLAGLER POINTE CONDO
- FLAGLER POINTE CONDOMINIUM
- FLAGLER YACHT CLUB CONDO
- FLAMING WATERS COUNTRY CLUB BLK 12
- FLAMINGO PARK
- FLAMINGO PARK IN
- FLEMING PARK
- FOREST CONDO
- FOREST ESTATES
- FOREST GLEN
- Forest Hill Garden Condo
- FOREST HILL GARDEN EAST CONDO
- FOREST HILL GARDENS CONDO
- FOREST HILL GARDENS EAST
- FOREST HILL GARDENS EAST COND
- FOREST HILL VILLAGE
- Forest Hill Village 01
- FOREST HILL VILLAGE 4
- FOREST HILL VILLAS GARDEN COND 2 THRU 13
- FOREST HILL VILLAS GARDEN CONDO
- Forest Lakes
- FOREST RIDGE PARK
- Forte
- Forte Residences, A Condominium
- FORTY-EIGHT HUNDRED
- FOXHALL PH 2
- FOXWOOD ESTATES PLAT NO 2 OF LAKESIDE GR
- FRENCHMENS LANDING 1
- FRESHWATER 11TH & 12TH AVE
- FRESHWATER 11TH & 12TH AVE ADD
- FRESHWATER 13TH AVE ADD
- FRESHWATER ADD TO WPB
- FRESHWATER ADD TO WPB AMD PL OF 11TH & 12TH AVE ADD.IN
- GALE LAKE WORTH 1 REAMNDED
- GALE LAKE WORTH PL NO 1 REAMNDED
- GALLAGHERS RESUB
- GARDEN HILLS UNIT THREE
- GARDEN RESIDENCES AT CITYPLACE CONDO
- GARDENS THE
- GARDENS THE IN
- GEORGETOWN CONDO
- GLADEPORT SUB TRS A AND B
- GLADEPORT TRS E THRU H
- GLENWOOD VILLAGE CONDO
- Golden Lakes
- GOLDEN LAKES VILLAGE
- GOLDEN LAKES VILLAGE COND 1 THRU 13-A
- Golden Lakes Village Condo
- GOLDEN LAKES VILLAGE CONDO Phase A
- GOLDEN LAKES VILLAGE CONDO 1 THRU 13-A
- GOLDEN LAKES VILLAGE CONDO 12-A
- GOLDEN LAKES VILLAGE CONDO 12-C
- GOLDEN LAKES VILLAGE CONDO A
- GOLDEN LAKES VILLAGE CONDO B C D
- GOLDEN LAKES VILLAGE CONDO E
- GOLDEN LAKES VILLAGE CONDO F
- GOLDEN LAKES VILLAGE CONDO G
- GOLDEN LAKES VILLAGE CONDO M
- GOLDEN LAKES VILLAGE CONDO N
- GOLDEN LAKES VILLAGE CONDO R
- GOLDEN LAKES VILLAGE CONDO S
- GOLFS EDGE A thru G CONDO
- GOLFS EDGE CONDOS A THRU G
- Golfview Heights 08
- GOLFVIEW HEIGHTS 6
- GOLFVIEW HEIGHTS 8
- GOOLSBY SUB UNREC ON
- GRAMERCY PARK UNIT 1
- GRAMERCY PARK UNIT 1 IN
- GRAMERCY PARK UNIT 2
- GRAMERCY PARK UNIT 4
- GRAMERCY PARK UNIT 5
- GRAND ISLES
- GRAND ISLES CONDO
- GRAND ISLES CONDOMINIUM
- GRANDVIEW HEIGHTS
- GRANDVIEW HEIGHTS IN PB7P58
- GRAY
- GREEN TERRACE CONDO
- GREENBRIER A THRU C CONDOS
- GRIFFINTOWN TWO
- GRUBER CARLBERG
- GRUBER CARLBERG IN
- GUARANTY BUILDING CONDO
- GUN CLUB EST
- GUN CLUB ESTATES IN
- HAMILTON BAY SEC 1A AND 1B
- HAMILTON BAY SEC 2
- HARBOUR COVE
- HARTLEYS
- HARTLEYS SUB UNREC
- Harwood Villas
- HASTINGS CONDOS
- HAVERHILL ACRES
- HERITAGE VILLAGE
- HERITAGE VILLAGE OF P B LAKES
- Heritage Village of Palm Beach Lakes
- Heritage Way
- HIGH SIERRA
- HILLCREST HEIGHTS
- HILLSIDE PARK
- HOLT ESTATE IN
- HOMEWOOD
- HOMEWOOD 1ST ADD
- HOMEWOOD 2ND ADD
- HOMEWOOD 3RD ADD IN
- HOMEWOOD 4TH ADD
- HOMEWOOD WPB IN
- Ibis – Eagle\’s Isle
- Ibis – Larkspur Landing
- Ibis – Quail Meadow
- Ibis – The Grande
- Ibis -Orchid Reserve
- Ibis 0 ORCHID RESERVE CONDO
- IBIS Golf & Country Club
- Ibis Golf & Country Club – Monte Verde
- Ibis Golf & Country Club – Sandpiper Cove
- Ibis Golf & Country Club – The Preserve
- Ibis Golf & Country Club -Bent Creek
- IBIS GOLF & COUNTRY CLUB PL 1 – Quail Meadow
- Ibis Golf & Country Club-Blue Heron Bay
- Ibis Golf and Country Club
- IBIS GOLF AND COUNTRY CLUB – Bay Pointe
- IBIS GOLF AND COUNTRY CLUB – Bent Creek
- IBIS GOLF AND COUNTRY CLUB – Blue Heron Bay
- IBIS GOLF AND COUNTRY CLUB – Egret Lakes
- IBIS GOLF AND COUNTRY CLUB – Hawk\’s Landing
- Ibis Golf and Country Club – Heritage Club
- IBIS GOLF AND COUNTRY CLUB – Herongate
- IBIS GOLF AND COUNTRY CLUB – Ibis Isle
- IBIS GOLF AND COUNTRY CLUB – Ibis Lakes
- Ibis Golf and Country Club – La Strada
- IBIS GOLF AND COUNTRY CLUB – Legend Club
- IBIS GOLF AND COUNTRY CLUB – Osprey Creek
- IBIS GOLF AND COUNTRY CLUB – Quail Meadow
- IBIS GOLF AND COUNTRY CLUB – SANDPIPER COVE
- IBIS GOLF AND COUNTRY CLUB – Terra Lago
- IBIS GOLF AND COUNTRY CLUB – The Grande
- IBIS GOLF AND COUNTRY CLUB – The Preserve
- IBIS GOLF AND COUNTRY CLUB – The Woodlands
- IBIS GOLF AND COUNTRY CLUB – Tradition Cove
- Ibis Golf and Country Club – Villagio
- IBIS GOLF AND COUNTRY CLUB 10
- IBIS GOLF AND COUNTRY CLUB 10, HERITAGE CLUB
- IBIS GOLF AND COUNTRY CLUB 11
- IBIS GOLF AND COUNTRY CLUB 16
- IBIS GOLF AND COUNTRY CLUB 17
- IBIS GOLF AND COUNTRY CLUB 18
- IBIS GOLF AND COUNTRY CLUB 19
- IBIS GOLF AND COUNTRY CLUB 2
- IBIS GOLF AND COUNTRY CLUB 21
- IBIS GOLF AND COUNTRY CLUB 22
- IBIS GOLF AND COUNTRY CLUB 25
- IBIS GOLF AND COUNTRY CLUB 26
- IBIS GOLF AND COUNTRY CLUB 28 – TERRA LAGO
- IBIS GOLF AND COUNTRY CLUB 29
- IBIS GOLF AND COUNTRY CLUB 3
- IBIS GOLF AND COUNTRY CLUB 30
- IBIS GOLF AND COUNTRY CLUB 33
- IBIS GOLF AND COUNTRY CLUB 5
- IBIS GOLF AND COUNTRY CLUB 5 – OSPREY CREEK
- IBIS GOLF AND COUNTRY CLUB 6
- IBIS GOLF AND COUNTRY CLUB CONDO
- IBIS Golf and Country ORCHID HAMMOCK AT IBIS
- Ibis-Egret Meadows
- Ibis-The Grande
- Ibis/Sandpiper
- Independence Point
- Indiantown River
- INLET GROVE IN PB 6 P 87 & PB 8 P 14
- Ironhorse
- IRONHORSE – The Preserves
- IRONHORSE PAR B-1
- IRONHORSE PAR B-2
- IRONHORSE PAR C
- IRONHORSE PAR F
- JAMESTOWN CONDO
- JEFFERSON PARK
- JEFFERSON TERMINALS
- Jog; Picnic Area; Pool; Sidewalks; Street Lights; Tennis
- JOGGERS RUN
- Jonathan\’s Cove
- Jonathon\’s Cove
- KENT CONDOS
- KINGSWOOD II A THRU F CONDOS
- KINGSWOOD II CONDOS CENTURY VILLAGE
- KNOTTY PINE ACRES
- KNOTTY PINE ACRES IN
- KNOWLES COURT AMND PL LTS 2 TO 18 LT 17 LESS W 7.5 FT & TRGLR PAR BROADWAY R/WS & LT 18 LESS W 7
- KNOWLES COURT AMNDED IN
- La Clara
- La Clara, Palm Beach
- La Fontana
- LA FONTANA APTS OF PALM BEACH INC
- LA FONTANA OF PALM BEACH INC
- LAFAYETTE PARK
- LAFAYETTE PARK IN
- Lafayette Park IN/ El Cid
- LAGUNA PARK 2
- LAKE ARJARO
- LAKE AVE ADD TO WPB
- LAKE BELVEDERE ESTATES
- LAKE BELVEDERE ESTATES 3RD ADD
- LAKE BELVEDERE ESTATES 4TH ADD
- LAKE CLARKE ISLE 2
- LAKE CLARKE MNR
- LAKE COLONY PH 3
- LAKE COLONY PH II
- LAKE FOREST PARK
- Lake Mango Shores
- LAKE MANGO SHORES #2
- LAKE PLACE CONDO
- Lakes of Laguna
- LAKESHORE CLUB CONDO
- LAKESIDE COURT SOUTH ADD
- LAKESIDE GREEN 2
- LAKESIDE GREEN 5
- LAKESIDE GREEN 8
- LAKESIDE GREEN PL 5
- LAKESIDE GREEN PL 8
- Lakeside Mobile-Home Park
- LAKEVIEW RIDGE
- LAKEWOOD
- LAKEWOOD RANCHES
- LANDS OF THE PRESIDENT CO
- LANDS OF THE PRESIDENT COND 1
- LANDS OF THE PRESIDENT COND 2 PT OF TR A OF PL 1, PRESIDENT COUNTRY CLUB PB29P76
- LANDS OF THE PRESIDENT COND 3 UNIT 1906
- LANDS OF THE PRESIDENT COND 8-A & 8-B
- LANDS OF THE PRESIDENT CONDO 1
- LANDS OF THE PRESIDENT CONDO 2
- LANDS OF THE PRESIDENT CONDO 2 ,
- LANDS OF THE PRESIDENT CONDO 2 PT OF TR A OF PL 1, PRESIDENT COUNTRY CLUB
- LANDS OF THE PRESIDENT CONDO 3
- Lands of the President Condo 4
- LANDS OF THE PRESIDENT CONDO 5
- LANDS OF THE PRESIDENT CONDO 6
- LANDS OF THE PRESIDENT CONDO 7
- LANDS OF THE PRESIDENT CONDO 8
- LANDS OF THE PRESIDENT. THE CONSULATE
- LANDS OF THE PRESIDENT/CONSULATE
- LARSON
- LENA LANE EAST
- Lewis Shore Estates
- LEWIS SHORE ESTATES 2
- LEWIS SHORE ESTATES 3
- LEWIS SHORE ESTATES LA VISTA ADDN 1
- LIBERTY BAY
- LIBERTY ISLES
- LINKS AT EMERALD DUNES CONDO
- LINKS AT EMERALD DUNES CONDOMINIUM
- LITTLE RANCHES
- LITTLE RANCHES 1ST ADD
- LITTLE RANCHES 1ST ADD IN
- Lone Pine Estates
- LOUIS ESTATES UNREC ON AM
- LOUIS ESTATES UNREC ON AM-63
- Loxahatchee / The Acreage
- Loxahatchee, Acreage
- MACKLE PARK 1ST ADD
- MACKLE PARK PLAT
- MADDOCK ADD WPB
- MAGNOLIA COURT
- MAJESTIC TOWERS I CONDO
- mango promenade
- MARINA GRANDE
- MARINA GRANDE RIVIERA BEACH CONDO
- MEADOWBROOK 1
- MEADOWBROOK PLAT 2 IN
- MERCER PARK
- MERLIN PARK REVISED
- METCALFS
- Metropolitan
- Metropolitan Condo
- MEZZANO
- MEZZANO CONDO
- MEZZANO CONDOMINIUM
- MILANO CONDO
- MILANO CONDOMINIUM
- MILITARY HILL
- MILITARY PARK DIEKHANS ADD
- MILLWOOD
- MIRAMAR
- MIRAMAR IN
- MIRAMAR ln
- MIRAMAR SHORES
- Model Home
- MODEL LAND CO
- MODEL LAND CO SUB
- MONCEAUX
- MONMOUTH ESTATES NO 2 UNREC ON AM-61A
- MONROE HEIGHTS
- MONTECITO PALM BEACH CONDO
- MONTECITO PALM BEACH CONDOMINIUM
- MORRISON SUBURBAN DEV IN
- MOSS & HEISLER
- Mr. C Residences
- MY PLACE COND BLDGK UNIT42 IN OR24784P1170
- MY PLACE CONDO
- NORMANDY VILLAGE
- NORTH LANDING
- NORTH PALM BCH 1
- NORTH PALM BCH 2
- NORTH PALM BCH 3
- NORTH PALM BCH 4
- NORTH PALM BCH PL 2
- North Palm Beach Pl No 4
- North Palm Beach PL3
- NORTH SHORE TERRACE 1
- NORTH SHORE TERRACE 2
- NORTH SHORE TERRACE 3
- NORTH SHORE TERRACE PL 2
- NORTH SHORE TERRACE PL NO 1
- NORTHAMPTON A THRU S CONDOS
- NORTHAMPTON CONDOS
- NORTHMORE ADD
- NORTHMORE ADD IN
- NORTHWOOD
- NORTHWOOD ADD
- NORTHWOOD ADD 7
- NORTHWOOD ADD IN PB 8 PGS 47 & 62, PB 9 PGS 30 & 47, PB 10 P 11, PB 11 PGS 18, 38
- NORTHWOOD ADD IN PB 8 PGS 47&62,PB9PGS30&47,PB10P11,PB11PGS18,38
- Northwood Shores
- NORTON PARK PLACE CONDO
- NORWICH CONDO
- OAKTON PRESERVE
- OAKTON PRESERVE REPL
- OCTOBER PARK
- Olara
- Old Northwood
- OLIVE TREE PAR 5C
- OMAR
- ONE CITY PLAZA
- ONE CITY PLAZA CONDO
- ONE CITY PLAZA CONDOMINIUM
- ONE WATERMARK PLACE OF THE PALM BEACHES
- ONE WATERMARK PLACE OF THE PALM BEACHES CONDOMINIUM
- ORCHID RESERVE CONDO
- OXFORD CONDO
- OXFORD CONDO 400
- PALM ACRES ESTATES
- PALM ACRES TR NO 2 UNREC
- PALM BEACH BUSINESS PLAZA CONDO
- Palm Beach Colony
- Palm Beach Colony Mobile Homes
- Palm Beach Country Estates
- PALM BEACH FARMS
- PALM BEACH FARMS CO 3
- PALM BEACH FARMS CO PL NO 3
- Palm Beach Grande
- PALM BEACH GRANDE CONDO
- PALM BEACH HOUSE
- PALM BEACH HOUSE CONDO
- PALM BEACH LAKES COMM 1
- PALM BEACH LAKES COMM NO 3 IN
- PALM BEACH LAKES NORTH 1
- PALM BEACH LAKES NORTH PL 1
- PALM BEACH LAKES SOUTH
- PALM BEACH LAKES SOUTH 2
- PALM BEACH LAKES SOUTH 3
- PALM BEACH LAKES SOUTH REPL BLKS 38 & 39 IN
- PALM BEACH NORTH
- PALM BEACH PLACE
- PALM BEACH PLACE CONDO
- Palm Beach Plantation
- Palm Beach Plantation, DIAMOND C RANCH POD A
- PALM CLUB
- PALM CLUB VILLAGE
- Palm Club Village 02
- PALM CLUB VILLAGE I CONDO
- PALM CLUB VILLAGE I-#1 & I-#2 COND
- PALM CLUB VILLAGE II
- PALM CLUB VILLAGE II CONDO
- Palm Club Village ll
- PALM CLUB WEST
- Palm Club West Village 1
- PALM CLUB WEST VILLAGE 1 CONDO
- PALM CLUB WEST VILLAGE 2
- PALM CLUB WEST VILLAGE I CONDO
- PALM CONDO
- PALM LAKE
- PALM LAKE CO-OP INC PH II
- Palm Lake Condo
- PALM LAKE CONDOMINIUM
- Palm Villas
- PALMA PARK
- PALMA PARK IN
- PALMBROOKE TOWNHOMES
- PALMS ESTATES
- PARK CENTRAL RPD
- PARK HILL EST
- PARK HILL ESTATES
- PARK PLACE CONDO
- PARK PLACE TOWNHOMES
- PARK RIDGE
- PARK SLOPE
- Park West
- PARKER ALMERIA
- PARKWAY VILLAGE
- Parliament East
- PARLIAMENT EAST CONDO
- PARLIAMENT GOLF VILLAS CONDO
- PATRICKS ADD REPL
- Pershing Park
- PERSHING PARK LAKE ADD
- PHEASANT RUN
- PINE AIR 3
- PINE AIR 6
- PINE AIR 6 IN
- PINE CLUB VILLAGE I
- PINE CREST CONDO
- PINE GLEN AT ABBEY PARK 1
- PINE GLEN AT ABBEY PARK PL 1
- PINE RIDGE AT HAVERHIL
- PINE RIDGE AT HAVERHILL
- PINE RIDGE AT HAVERHILL COND
- PINE RIDGE AT HAVERHILL CONDO
- PINE RIDGE AT HAVERHILL CONDOMINIUMS
- PINECREST CONDO
- PIONEER TRAIL PUD
- PIPERS CAY CONDO
- PLACIDO MAR
- PLACIDO MAR CONDO
- PLANTATION MANOR ESTATES 2
- PLANTATION MOBILE HOMES ESTATES NO 2
- Plantation Village
- PLANTATION VILLAGE UNREC ON AM-8
- PLAZA OF THE PALM BEACHES CONDO
- PLEASANT CITY UP TO DATE ADD
- PLYMOUTH CONDOS A TO F
- PLYMOUTH L -CENTURY VILLAGE
- POINTE OF WOODS PUD
- POLO CLUB ESTATES 3
- PONTE VERDE AT PALM BEACH LAKES CONDO
- Portofino Condo
- PORTOFINO CONDO PT OF LTS 15 AND 16,JARVIS PAR
- PORTOFINO SOUTH CONDO
- PORTOFINO SOUTH CONDO ESTATES OF SOUTH PALM BEA
- PORTOFINO SOUTH CONDO ESTATES OF SOUTH PALM BEACH
- PORTOSOL REPL NO 3
- Prado
- PRADO CONDO
- PRADO CONDOMINIUM
- President Country Club
- PRESIDENT COUNTRY CLUB 4
- PRESIDENT COUNTRY CLUB PL 4
- Presidential Estates
- PRESIDENTIAL GOLFVIEW CONDO
- Prospect Park
- PROSPECT PARK SOUTH
- PROSPECT PARK SOUTH IN PB 7 PGS 59, 60 & 66
- PROSPECT PARK WEST
- QUAIL HOLLOW
- RAILWAY
- RANCH HOUSE ESTATES
- RANCHETTE LAKE
- RANCHETTE ROYALE
- RAPALLO COND
- RAPALLO CONDO
- RAPALLO NORTH CONDO
- Rapallo South
- RAPALLO SOUTH COND
- RAPALLO SOUTH CONDO
- REGENCY SURF & RACQUET CLUB CONDO
- REGENCY SURF & RACQUET CLUB CONDOMINIUM
- REGENTS PLACE
- REGENTS PLACE PARTIAL
- RENAISSANCE SEC 4 1
- RENAISSANCE SEC 4 2
- RENAISSANCE SEC 4 2/Sail Harbor/Briar Bay
- RENAISSANCE SEC 7
- RENAISSANCE SEC 8
- RENAISSANCE SECTION 7 / Waters Edge
- RIANON CONDOMINIUM 27-43-43, TR OF SUBMRG LAND IN GOV LT 2 IN TIIF DEEDS
- Ridge Crest
- RIVER BRIDGE
- Riverwalk
- RIVERWALK 12
- RIVERWALK 13
- RIVERWALK 2
- RIVERWALK 3
- RIVERWALK 3A
- RIVERWALK 6
- RIVERWALK 8
- RIVERWALK PL 10
- RIVERWALK PL 12
- RIVERWALK PL 6
- ROAN COURT
- ROOSEVELT ESTATES
- ROOSEVELT ESTATES REPL
- ROOSEVELT ESTS IN PB 25 PGS 204 TO 212 INC
- ROSEDALE
- ROSEDALE ADD WPB AMNDED PL IN
- ROSELAND PARK
- Royal Forest
- ROYAL FOREST TOWNHOUSES
- ROYAL FOREST TOWNHOUSES REPL
- ROYAL PALM BEACH
- Royal Palm Beach unincorporated
- ROYAL PALM ESTATES
- ROYAL PINES
- S/D OF 10-44-43, GOV LTS 1, 2 & 3
- SADLERS BONNYVIEW ADD
- Sagewood
- Sail Harbour
- Sail Harbour at Briar Bay
- SALISBURY CONDOS
- SAN MICHELE CONDO
- Sandalwood Lake South
- Sandalwood Lakes 01
- Sandpiper Cove
- SANTA LUCIA
- Saratoga Bay
- SARATOGA POINTE
- SAUNDERS
- SEMINOLE HEIGHTS
- SEMINOLE HEIGHTS IN
- SEVILLE
- SHADYSIDE
- Sheffield
- Sheffield Condos
- SHEFFIELD CONDOS A TO Q
- SHEPLEY ESTATES
- SHEPLEY ESTS IN
- sherwood village
- SHOMA
- SIERRA WOODS CONDO
- Slade
- SLADE CONDO
- Slade Condominium
- SLEEPY HOLLOW 1
- SLEEPY HOLLOW 3
- Society Hill
- SOCIETY HILL CANNONGATE
- Society Hill Cannongate 05
- SOCIETY HILL CANNONGATE PL #5
- Solcera
- SOMERSET
- SOMERSET CONDOS
- South of Southern
- South of Southern, SoSo
- SOUTH PALM BEACH ESTATES
- SOUTH PALM BEACH ESTS ADD 2
- SOUTHAMPTON CONDO
- SOUTHBORO PARK
- SOUTHBRIDGE CONDO
- SOUTHERLY HILL IN
- SOUTHERN BLVD PARK
- SOUTHERN BOULEVARD PINES
- SOUTHLAND PARK
- SOUTHLAND PARK ADD IN
- SOUTHWOOD HEIGHTS
- SPA AT SUNSET ISLES CONDOMINIUM
- SPENCER PLACE CONDO
- SPRINGDALE HOMES
- ST ANDREWS PALM BEACH CONDO I
- ST ANDREWS PALM BEACH CONDO II
- ST ANDREWS PALM BEACH CONDO III
- ST ANDREWS PALM BEACH CONDO V
- STAMFORD AT THE VILLAGES OF PALM BEACH L
- STAMFORD AT THE VILLAGES OF PALM BEACH LAKES
- STERLING VILLAGES OF PALM BEACH LAKES CONDO
- STERLING VILLAGES OF PALM BEACH LAKES CONDOMINIUM
- STONEHAVEN
- STONEHAVEN ESTATES
- STONEHAVEN PUD
- STONEHAVEN PUD 3
- STRAND CONDO
- STRATFORD CONDOMINIUM
- SUB OF GEO S ROWLEYS HOMESTEAD
- Summit Pines
- Summit Pines Unit 1
- SUMMIT PINES UNIT 2
- SUMMIT PINES UNIT 3
- SUMMIT PINES UNIT 4
- SUNSHINE PARK ADD 1
- SUNSHINE PARK ADD 2
- SUNTERRA PUD
- SUNTERRACE AT THE GARDENS
- SUSSEX A THRU M CONDO Century Village
- SUSSEX CONDO
- Sussex H at Century Village
- SUTTON TERRACE SOUTH
- SYMPHONY PLACE
- TALL PINES WATERWAY ESTATEs
- TAMARIND PARK
- TANGLEWOOD COURT REPLAT NO 1
- TCPB CONDO
- TCPB CONDS 1-4
- TELLIN HEIGHTS
- Terracina
- TERRACINA JOHNSON PROPERTY
- TERRACINA JOHNSON PROPERTY PUD
- THE ACREAGE
- The Acreage, Acreage, Acreage & Unrec, Loxahatchee
- The Airfield Park
- The Berkeley
- The Edge
- The Gardens
- The olives
- The Plaza of the Palm Beaches
- The Ritz Carlton Residences, West Palm Beach
- The Southend
- The Southend, SoSo
- The Southend, SoSo
- The Strand Condominium
- The unit is vacant. Call listing agent for appointments 561-670-9797
- The Woods
- THOUSAND PINES
- TIFFANY LAKE PHASE I COND
- TOLEDO
- TOWER CONDO AT CITYPLACE
- TOWNHOMES AT CONNISTON
- TRIANON
- TRIANON CONDO
- TUXEDO PARK
- Two City Plaza
- TWO CITY PLAZA CONDO
- Unincorporated
- UNINCORPORATED West Palm Beach
- Unincorporated WPB
- Vedado
- VENTURA GREENS AT EMERALD DUNES CONDO
- VIA JARDIN CONDO
- VIA JARDIN CONDO, Commercial
- VICTORIA WOODS
- VICTORIA WOODS 1
- VICTORIA WOODS 2
- VICTORIA WOODS 3B
- VICTORIA WOODS PH 3-B
- VICTORIA WOODS PL 1
- VICTORIA WOODS PL 2
- VIKING ARMS CONDO
- Villa Lofts Condo
- Village Of Sandalwood Lakes
- VILLAGE OF SANDALWOOD LAKES 1
- VILLAGE OF SANDALWOOD LAKES 2
- VILLAGE OF SANDALWOOD LAKES 3
- VILLAGE OF SANDALWOOD LAKES NORTH
- VILLAGE OF SANDALWOOD LAKES PL 1
- Village of Sandalwood Lakes SO
- VILLAGE OF SANDALWOOD LAKES SOUTH
- VILLAGE OF SIERRA WEST CONDO
- VILLAGES OF PALM BEACH LAKES 2
- VILLAS AT EMERALD DUNES CONDO
- VILLAS AT EMERALD DUNES CONDOMINIUM
- VILLAS OF PALM BEACH 4
- VILLAS ON ANTIQUE ROW
- VIRGINIA TERR
- Vista Center Corporate Park
- VISTA ENCANTO Lt 44 blk 3
- VISTA ENCANTO ADD
- WALTHAM CONDO
- WASHINGTON HEIGHTS
- WASHINGTON HGTS IN
- WATERSIDE LUXURY TOWNHOMES CONDO
- WATERSIDE LUXURY TOWNHOMES CONDOMINIUM
- Waterview Towers
- WATERVIEW TOWERS COND DECL FILED 8-20-81
- WATERVIEW TOWERS CONDO
- WATERWAYS TAHERI PUD
- WELLESLEY AT LAKE CLARKE SHORES
- WELLINGTON A THRU H & J THRU M CONDOS
- WELLINGTON CONDOS
- WELLINGTON VIEW
- West Gate Estates
- WEST GATE ESTATES NORTHERN
- WEST GATE ESTS NORTHERN SEC
- WEST PALM BEACH
- WEST PALM BEACH COMMERCE PARK CONDO
- west palm beach/ loxahatchee
- WEST PALM HARBOR
- WEST TRAIL PARK
- WESTCHESTER TOWNHOUSES
- WESTFIELD AT WPB
- Westfield At Wpb Blks 6 To 9 Of 1
- WESTFIELD AT WPB REPL BLKS 6 TO 9 OF PL 1
- WESTWOODS
- Whispering Woods
- WHITEHALL
- WHITEHALL CONDO LANDS OF THE PRESIDENT
- WHITEHALL CONDO OF THE LANDS OF THE PRESIDENT
- WHITEHALL CONDS OF THE LANDS OF THE PRESIDENT
- WHITEHALL VILLAGE
- WHITEHALL VILLAGES
- WHITNEY CONDO
- WILLA PARK
- WILLFRED PARK
- Wind in the Pines
- Windsor
- WINDSOR CONDOS
- Windsor E
- WOODBRIDGE LAKES
- WOODED ACRES
- WOODLAWN
- WOODS LANDING
- WORTH COURT
- WORTH COURT WPB IN
- Worthington
- WPB AMNDED IN PB 6 P 29 & PB 7 P 84
- WYNNEWOOD ACRES 4
- YACHT CLUB TOWERS CONDO
- YORKTOWN CONDO
Market Summary
Current real estate data for Townhouse in West Palm Beach as of Dec 17, 2025
1,199
Townhouse Listed
1,513
Avg DOM
191
Avg $ / SqFt
$314,565
Avg List Price
Property Summary
- Located in the Village of Sandalwood Lakes subdivision, 302 3rd Way West Palm Beach FL is a Townhouse for sale in West Palm Beach, FL, 33407. It is listed for $325,000 and features 2 beds, 2 baths, and has approximately 1,236 square feet of living space, and was originally constructed in 1983. The current price per square foot is $263. The average price per square foot for Townhouse listings in West Palm Beach is $191. The average listing price for Townhouse in West Palm Beach is $314,565. To schedule a showing of MLS#rx-11136535 at 302 3rd Way in West Palm Beach, FL, contact your Acquire Palm Beach LLC agent at 561-279-3333.
Similar Listings Nearby
Listing courtesy of KW Reserve Palm Beach, (561)–966–4000
© 2025 Beaches Multiple Listing Service BMLS. Information deemed reliable, but not guaranteed. This site was last updated Dec-17-2025 11:10:55 am.
© 2025 Beaches Multiple Listing Service BMLS. Information deemed reliable, but not guaranteed. This site was last updated Dec-17-2025 11:10:55 am.
302 3rd Way
West Palm Beach, FL





























